Skip to content

Appel à projets

20 arcades disponibles aux Vernets

Issu de l’une des plus grandes transformations urbaines de Genève, le projet Quai Vernets a pour ambition de créer un quartier vivant, durable et ouvert à toutes et tous, intégrant une diversité d’activités de proximité.

Afin de renforcer la cohésion sociale et d’animer les espaces publics, 20 arcades commerciales de 30 à 269 m² sont mises à disposition de porteurs et porteuses de projets dans six domaines d’activités, entre 2026 et 2027

Vous êtes à la recherche d’une arcade et intéressé·e à prendre part à la vie du futur quartier en plein de centre de Genève ? N’hésitez pas à candidater !

 

Recherche de projets dans 6 domaines :

  • Arts, culture & loisirs  : activité liée à la création, production, distribution, consommation ou échange dans le domaine de l’art et de l’artisanat ; activité liée à la détente, au bien-être ou à la cohésion sociale. · [3 arcades disponibles]
  • Économie circulaire : activité favorisant l’économie circulaire et privilégiant le partage, la réutilisation, la réparation, la rénovation ou le recyclage. · [4 arcades disponibles]
  • Restauration : restaurant, café, bar, tea-room ou take-away. · [4 arcades disponibles]
  • Services à la personne : salon de coiffure, institut de beauté, soins du corps, etc. · [1 arcade disponible]
  • Sport & mouvement : lieu de pratique d’une activité physique ou vente de produits sportifs. · [1 arcade disponible]
  • Vente : commerce de détail spécialisé : caviste, fleuriste, pharmacie, glacier, magasin d’électronique, etc. · [7 arcades disponibles]

Un appel à projets a été rédigé pour chaque domaine d’activités recherchées. Téléchargez les appels à projets en bas de la page !

Un emplacement stratégique

  • Situé au cœur du futur quartier Quai Vernets, 100 % piéton avec 4’000 nouveaux habitant·es
  • Surfaces de 30 à 269 m² adaptées à différents usages
  • Accessibilité optimale : transports publics, proximité immédiate de logements, équipements et espaces collectifs

Livraison des arcades :

Disponibilité prévue : entre 2ème trimestre 2026 et dernier trimestre 2027. La livraison varie en fonction des arcades. Veuillez vous référer à chaque appel à projets.

Séance publique de présentation

Veuillez noter qu’une séance de présentation publique du quartier Quai Vernets se tiendra à L’ESPACE (1 chemin du 23-Août, 1205 Genève) le 17 septembre à 17h45 · lien d’inscription https://framaforms.org/inscription-arcades-quai-vernets-seance-publique-appel-a-projets-1753871677

Vous souhaitez partager une arcade ?

Nous organisons des speedmeetings pour les catégories :

  • Arts, culture et loisirs ;
  • Economie circulaire ;
  • Sport et mouvement.

Faites-nous part de votre intérêt d’ici le 5 octobre et participez à un speedmeeting pour trouver vos futurs colocataires !

Comment y participer ?

  • Envoyer à arcades@cogerim-vernets.ch une lettre d’intention avec un bref descriptif de votre activité et l’arcade visée (délai au 5 octobre) ;
  • Nous vous attribuerons par mail une des trois rencontres organisées.

Les speedmeetings auront lieu les 14, 15 et 16 octobre 2025 à l’Espace (Chemin du 23-Août 1, 1205 Genève).

Comment candidater ?

Les candidatures sont à transmettre par email à arcades@cogerim-vernets.ch d’ici au 16 novembre 2025 à 23h.

Les modalités de candidature se trouvent en point 5 des appels à projets ci-dessous.

Chaque candidature devra comprendre les éléments suivants :

  • Lettre de motivation :
    • Expliquer les corrélations entre l’activité envisagée et la vision du quartier (cf. page 3 de l’appel à projets)
    • Mentionner les éventuelles synergies avec d’autres arcades
  • Dossier de candidature :
    • Résumé opérationnel : descriptif de l’activité, des prix pratiqués, des objectifs, de l’analyse du marché
    • Modèle d’affaires (business model canevas)
    • Données financières :
      • Compte de résultat et bilan des deux derniers exercices (si existant) ;
      • Budget prévisionnel et/ou business plan sur 2-3 ans ;
      • Plan d’investissement.
    • Éventuels besoins particuliers en termes d’aménagement ;
    • Tout élément permettant de préciser l’activité : plan, photographie, référence, etc.
    • Descriptif de l’équipe et CV des porteurs et porteuses de l’activité.

Merci de bien vouloir adresser toute question éventuelle à : arcades@cogerim-vernets.ch

Photo de Appel à projets Arcades Arts, Culture & Loisirs

Appel à projets Arcades Arts, Culture & Loisirs

Télécharger
Photo de Appel à projets Arcades Economie Circulaire

Appel à projets Arcades Economie Circulaire

Télécharger
Photo de Appel à projets Arcades Restauration

Appel à projets Arcades Restauration

Télécharger
Photo de Appel à projets Arcades Service à la personne

Appel à projets Arcades Service à la personne

Télécharger
Photo de Appel à projets Arcades Sport & Mouvement

Appel à projets Arcades Sport & Mouvement

Télécharger
Photo de Appel à projets Arcades Vente

Appel à projets Arcades Vente

Télécharger
PDF image substitut

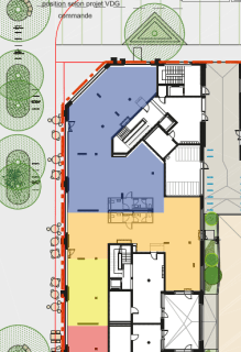
Schéma directeur des Arcades

Télécharger